HSDesain.com
-- Residences that have a garden have added value that is used as the
center of the house. The outside of the residence including the garden
is also one of the important and interesting things to present in your
design because it can beautify the house. This design not only has a
comfortable and modern interior function but also provides several
benefits to the garden. If you are curious, take a good look at this
article Minimalist House Design 7 x 9 M 2-Bedroom.
Facade

Simple
and minimalist house facade description of this house, has a flat roof
that overlaps each other, this house is square with an industrial
house-like appearance because it has quite a lot of glass doors and
windows. This facade is enhanced with solid wood on the door and some
walls as well as some partitions in the front corner of the house. This
combination gives the house a modern yet minimalist feel.
Garden

The
family feels at home because the house has good efficiency, while the
modern interior is comfortable, but an area is built that is the center
of the house and entertainment for the family. This garden function is
one of the antidotes to air pollution, presenting a cool and comfortable
atmosphere in the house, an area that is used as entertainment to spend
leisure time with family.
Living Room 
Having
a rectangular living room with a combination of muted solid wood
materials, a combination of 1 color that matches the carpet, sofa and
gray curtains displays a neat and elegant impression. Behind the sofa,
there is a smooth wooden wall panel fully installed on the wall. The
room is simply decorated as well as a table lamp and some books and
flower vases on the sofa. The color produced by the wood makes an
elegant and calm impression.
Dining & Kitchen

After
the living room, which is still connected to the dining table and
kitchen. This area gets good lighting on the wide glass windows on some
walls, making the room bright and clean. The choice of white color tones
and a combination of calm wood materials makes the room look modern
elegant. The window is equipped with curtains that rise to the roof to
make the room look neat and look higher.
Master Bedroom 
This
bedroom is dominated by 2 colors, namely white and gray, which can be
seen on the wall behind the bed, blankets and curtains. The rest of the
colors on the wooden furniture are calm which makes the room warm and
soothing. Right next to the bed installed a glass window it is good in
natural lighting the bedroom.
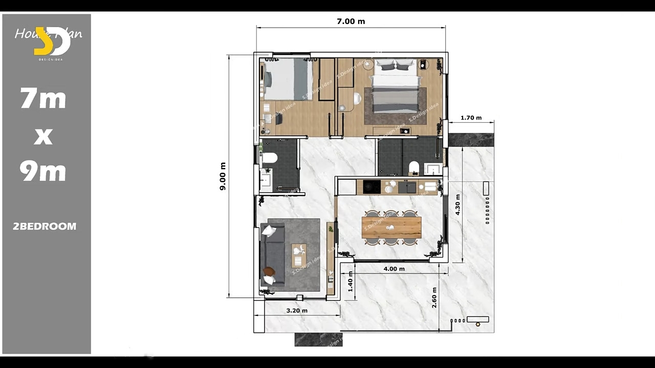
Floor Plan
The house is small but can be utilized well, each room is also made in a minimalist design and displays a warm impression. This small house measuring 7 x 9 meters has facilities such as: Balcony for entertainment, Living area, dining & kitchen area, common toilet & bathroom, bedroom 1, master bedroom with master toilet & bathroom.
Author : Hafidza
Editor : Munawaroh
Source : S Design Idea

