![]() |
| Modern House Design Idea with 11 x 15 M | 2-Storey & 5-Bedroom |
HSDesain.com -- This second floor house will make you want to own it, a house that has enough space with complete facilities. This house is designed for those of you who have a large family at the top of the family bedroom and downstairs in the bedroom design for visiting guests so as to separate the private area on the second floor. Here we see together Modern House Design Idea with 11 x 15 M | 2-Storey & 5-Bedroom
Facade
A two-storey house featuring a simple and minimalist look, this house is dominated by glass with a modern look. The square-shaped house with the right side forming a rectangle in the center is evenly installed with glass. While the lower left part is used as a balcony and on the second floor a cozy balcony. Using a calm white color palette so that the minimalist impression is modern.
Living Room
%203-16%20screenshot.png)
The living room, which we can see directly into the house, is beautified with a small elongated garden behind the sofa which is partitioned by glass. While next to the garden is a staircase to the second floor so that in addition to the living room but towards the second floor can enjoy the beautiful garden atmosphere. This living room has an elongated sofa and a television that has been adjusted in size and distance from the sofa. While on the side, a large glass window is installed as lighting.
Kitchen & Dining Room
%200-12%20screenshot.png)
The living room and this area are partitioned by dark brown wood panels, the color matches the various furniture in the kitchen area, this fairly dark color provides a function that can neutralize the bright and bright atmosphere in the house. The center of the dining table and kitchen is separated by a simple mini bar with a beverage storage rack.
%200-12%20screenshot.png)
The living room and this area are partitioned by dark brown wood panels, the color matches the various furniture in the kitchen area, this fairly dark color provides a function that can neutralize the bright and bright atmosphere in the house. The center of the dining table and kitchen is separated by a simple mini bar with a beverage storage rack.
Master Bedroom
%208-42%20screenshot.png)
The master suite is located on the second floor and features a beautiful balcony, partitioned by glass doors that make the room perfectly bright. This spacious room has simple furniture with calm gray colors, such as exposed walls that match the curtains and other furniture that make the room look modern and luxurious.
%208-42%20screenshot.png)
The master suite is located on the second floor and features a beautiful balcony, partitioned by glass doors that make the room perfectly bright. This spacious room has simple furniture with calm gray colors, such as exposed walls that match the curtains and other furniture that make the room look modern and luxurious.
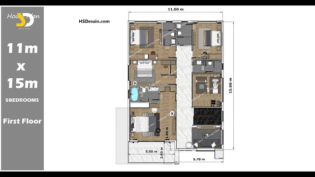
Floor Plan
%202-6%20screenshot.png)
This second floor house has a modern and harmonious impression, with a dominant white palette accompanied by various calm colors that make this house suitable for you as a home for the future. This house has an area of 11 x 15 meters has carport facilities, living area, common bedroom, kitchen & dining area, toilet & bathroom.
%202-6%20screenshot.png)
This second floor house has a modern and harmonious impression, with a dominant white palette accompanied by various calm colors that make this house suitable for you as a home for the future. This house has an area of 11 x 15 meters has carport facilities, living area, common bedroom, kitchen & dining area, toilet & bathroom.
%202-10%20screenshot.png)
The second floor is equipped with a family area, bedroom 2, bedroom 3 and bedroom 4. In the middle of the common toilet & bathroom, then the master bedroom which is equipped with a toilet & bathroom and finally a complete sports area.
That's the Modern House Design Idea with 11 x 15 M | 2-Storey & 5-Bedroom. Hope you like it!
Hsdesain.com
will always share you the latest Home Design Pictures ideas and Garden
Ideas. So, what are you waiting for, enjoy the new inspiring ideas on Hsdesain.com.
If
you have any feedback, opinions or anything you want to tell us about
this blog you can contact us directly in Contact Us Page on Modern House and Join with our Whatsapp Channel for more useful ideas. We are very
grateful and will respond quickly to all feedback we have received.
Author : Susi Yanti
Editor : Munawaroh
Source : S Design Idea

%200-1%20screenshot.png)